Okno w kuchni, balkon, 4 pok., rolety, antresola
535 000 zł 7 246 .38 zł / m2Opis
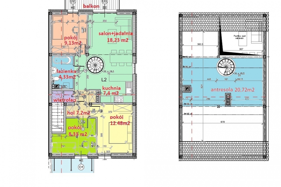
PRZESTRONNE mieszkanie z ANTRESOLĄ – świetna cena za ogromną powierzchnię mieszkania, która daje Ci wiele możliwości aranżacyjnych. Okno w kuchni. Wysoki sufit w salonie optycznie powiększający przestrzeń w mieszkaniu.
OPIS NIERUCHOMOŚCI:
- pow. użytkowa mieszkania: 73,83m2
- piętro: pierwsze
- indywidualne wejście do mieszkania
- segment SKRAJNY (z dodatkowym oknem w kuchni - możesz wydzielić zamkniętą kuchnię)
- ANTRESOLA o pow. użytkowej ok. 20,72m2 (po podłodze ok. 28m2)
- w salonie wysoki efektowny sufit
- 4 pokoje (w tym salon z kuchnią o pow. ok. 26m2)
- balkon
- W CENIE: 1 MIEJSCE PARKINGOWE oraz ROLETY ZEWNĘTRZNE
DODATKOWE INFORMACJE:
- mieszkania oddawane w stanie deweloperskim – szczegóły w biurze (ogrzewanie gazowe, dach: blachodachówka, okna PCV, antresola: (tynki, elektryka, jedno okno dachowe, grzejniki, ocieplenie dachu wełną 30cm oraz obite płyta GK)
- cena nie zawiera schodów na antresolę
- podłogówka na części mieszkania
- opcja zakupu drugiego miejsca parkingowego w cenie: 15 000 zł
- zakończenie budowy: IV kwartał 2026r.
CENA: 535 000 zł
Zapraszam do kontaktu i na prezentację.
Jadwiga Szramik
tel. 733 933 318
Nr licencji: 29242
LICENCJONOWANE BIURO NIERUCHOMOŚCI
Rzeszów, ul. Dąbrowskiego 67
tel. 17 710 50 01
e-mail: jadwiga@super-nieruchomosci.com
www.super-nieruchomosci.com
Podstawowe dane
Lokalizacja
Skontaktuj się z agentem
