Super Nieruchomości - mieszkania w Rzeszowie, działki w okolicach Rzeszowa, nowe mieszkania od dewelopera w Rzeszowie

Lokalizacja

Wyszukiwanie zaawansowane

Wyszukiwanie zaawansowane

Opis

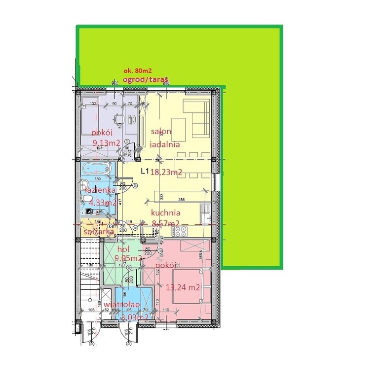
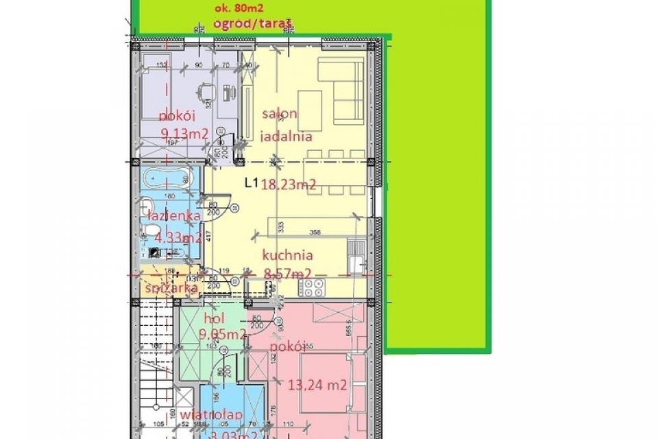
Osiedle komfortowych mieszkań w Tyczynie z przestronną strefą dzienną oraz DUŻYMI OGRÓDKAMI. Świetna cena!

OPIS NIERUCHOMOŚCI:
- pow. użytkowa mieszkania: 67,40m2
- piętro: parter
- segment skrajny
- okno w kuchni - istnieje opcja wykonania osobnej kuchni
- OGRÓDEK o pow. ok. 80m2 (usytuowany od strony zachodniej)
- 3 pokoje (w tym przestronny salon z kuchnią o pow. prawie 27m2)
- spiżarka 1,82m2
- W CENIE: 1 MIEJSCE PARKINGOWE oraz ROLETY ZEWNĘTRZNE



DODATKOWE INFORMACJE:
- mieszkania oddawane w stanie deweloperskim – szczegóły w biurze (ogrzewanie gazowe, dach: blachodachówka, okna PCV)
- podłogówka na części mieszkania
- opcja zakupu drugiego miejsca parkingowego w cenie: 15 000 zł
- zakończenie budowy: IV kwartał 2026r.



CENA: 499 000 zł


Zapraszam do kontaktu i na prezentację.
Jadwiga Szramik
tel. 733 933 318
Nr licencji: 29242

LICENCJONOWANE BIURO NIERUCHOMOŚCI
Rzeszów, ul. Dąbrowskiego 67
tel. 17 710 50 01
e-mail: jadwiga@super-nieruchomosci.com
www.super-nieruchomosci.com

Podstawowe dane

Numer oferty:
9782/3256/OMS
Miasto:
Tyczyn
Ulica:
ul. Kościuszki
Cena za m2:
7403.56 zł
Powierzchnia:
67.40 m2
Stan:
Stan deweloperski
Rok budowy:
2026
Liczba pokoi:
3
Liczba pięter:
1
Piwnica:
nie
Garaż:
tak
Balkon:
nie

Lokalizacja

Skontaktuj się z agentem

Jadwiga Szramik Specjalista ds. nieruchomości tel. 733 933 318 Zostaw wiadomość
Zainteresowany?
Napisz do nas lub zadzwoń
Udostępnij ofertę
powrót do listy ofert