O inwestycji
NOWA INWESTYCJA: Bliźniaki w stanie deweloperskim z dwoma miejscami postojowymi stryszkiem oraz narożną działką.
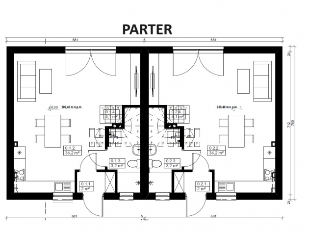
14 domów w zabudowie bliźniaczej o powierzchni użytkowej 81,20 m2 plus 10 m² powierzchni strychowej, budowanych na działkach o powierzchniach od 180 m2 do 250 m2. Budynki oddane będą w stanie deweloperskim premium z wykonaną instalacją rekuperacji, klimatyzacji oraz instalacją pod rolety zewnętrzne.
Na parterze oraz na piętrze będzie zainstalowane na całości ogrzewanie podłogowe obsługiwane piecem dwufunkcyjnym gazowym. Ściany wewnętrzne wykończone pod malowanie. Strych wraz z sufitami podwieszanymi ocieplony wełną oraz pianą „PUR” w sposób aby jak najwięcej ciepła zachować wewnątrz budynku.
Przekazanie kluczy planowane jest na IV kwartał 2026 roku.
Lokalizacja
Rzeszów – Magiczna - 14 domów jednorodzinnych w zabudowie bliźniaczej w dzielnicy Budziwój
W okolicy znajduje się przedszkole, szkoła podstawowa, dom kultury, sklepy samoobsługowe, apteka, poczta, kościół oraz przystanek autobusu MPK. Lokalizacja charakteryzuje się dobrą komunikacją z centrum miasta, do którego można dotrzeć zaledwie w 10-15 minut.
Standard wykonania
STANDARD WYKONANIA - STAN DEWELOPERSKI :
Przyjęte rozwiązania budowy:
- Fundamenty: ściana fundamentowa zbrojona z betonu wodoszczelnego W8 gr 25 cm, izolacja przeciwwilgociowa, styropian ekstrudowany gr 8 cm, folia kubełkowa
- Ściany zewnętrzne: bloczki Sylikat gr 18 cm, ocieplenie styropianem gr 15 cm oraz 20 cm, tynk akrylowy, wewnątrz tynki gipsowe
- Ściany wewnętrzne oddzielające: bloczki Sylikat gr 18 cm – podwójna ściana z dylatacją styropianem gr 5 cm
- Podłoga na gruncie: podbudowa z kruszywa zagęszczonego, folia hydroizolacyjna, płyta żelbetowa gr 12 cm, folia polietylenowa, papa zgrzewana, płyty styropianowe gr 15 cm, folia polietylenowa, ogrzewanie podłogowe na całości, wylewka betonowa gr 6 cm, warstwa wykończeniowa
- Strop: żelbetowy, zbrojony stalą gr 18 cm, tynki gipsowe ,styropian podłogowy gr 5 cm, folia polietylenowa, ogrzewanie podłogowe na całości, rozprowadzenie kanałów do systemu rekuperacji, wylewka betonowa gr 6 cm, warstwa wykończeniowa
- Schody: zbrojone żelbetowe
- Sufity na piętrze: ruszt metalowy systemowy, płyty GK spoinowane, wełna mineralna gr 15 cm, płyty OSB, schody strychowe, rozprowadzenie kanałów do systemu rekuperacji
- Dach: blachodachówka, ocieplenie pianą PUR gr 20 cm, podbitka wykonana z blachy, kominy murowane ocieplone, otynkowane
- Okna: firma Vidok, trzy szybowe, pięciokomorowe, drzwi zewnętrzne KMT antywłamaniowe ocieplone stalowe
- Miejsca postojowe, chodniki, odbojówka wykonane z kostki brukowej
- Ogrodzenie panelowe całej inwestycji
Materiał SILKAT – spośród konwencjonalnych materiałów budowlanych wyróżnia się bardzo dobrą akumulacją ciepła oraz izolacją akustyczną. Latem podczas upałów, pomieszczenia wewnątrz domu pozostają chłodne, zaś zimą duża akumulacyjność ścian przyczynia się do mniejszego zapotrzebowania na energię niezbędną do ogrzania budynku.
Dostępność
| Nr | Pokoi | Powierzchnia | Działka | Cena / m2 | Cena | Status |
|---|---|---|---|---|---|---|
| C | 4 | 81.20 m2 | 178.00 m2 | 7 992 .00 zł | 649 000 zł | Wolne |
| G | 4 | 81.20 m2 | 187.00 m2 | 7 992 .00 zł | 649 000 zł | Wolne |
Skontaktuj się
z agentem








