Wolnostojący dom na dużej działce, Straszydle
599 000 zł 4 150 .21 zł / m2Opis
W sprzedaży gotowy dom wolnostojący w stanie surowym zamkniętym z elewacją w miejscowości Straszydle, 30 minut od centrum Rzeszowa. Dom zostanie wybudowany na działce o powierzchni 13,24ar według sprawdzonego projektu „Dom w Malinówkach 23 (G)".
OPIS NIERUCHOMOŚCI:
- powierzchnia użytkowa domu: 120,05m²
- garaż 18,19m2
- kotłownia: 6,09m2
- powierzchnia działki: ok. 1324 m²
- funkcjonalny i dobrze rozplanowany układ wnętrz
- nowoczesna bryła budynku
- cicha i spokojna okolica
Zakończenie budowy: II kwartał 2026r.
UKŁAD POMIESZCZEŃ:
Parter:
- wiatrołap: 5,43m²
- garaż: 18,19m²
- salon+jadalnia: 25,47m²
- kuchnia: 8,25m²
- spiżarnia: 1,74m²
- łazienka: 2,83m²
- kotłownia 6,00m²
- pokój: 8,81m²
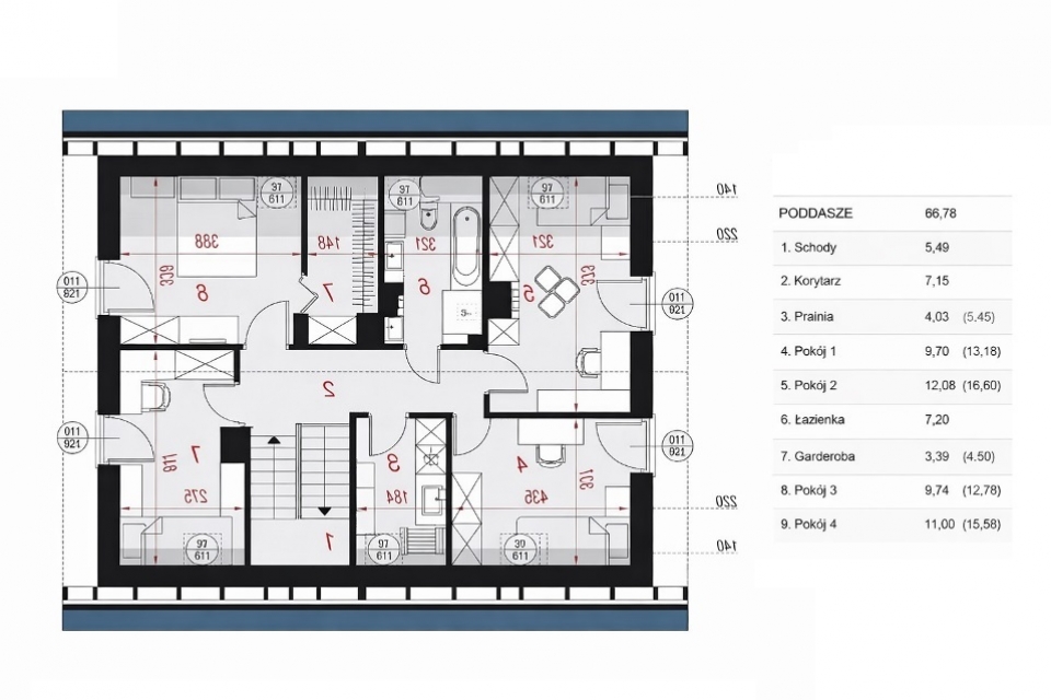
Piętro:
- schody: 5,49m²
- korytarz: 7,15m²
- pralnia: 4,03m²
- pokój 9,70 m²
- pokój 12,08 m²
- pokój 9,74 m²
- pokój: 11,00m²
- łazienka 7,20 m²
- garderoba: 3,39m²
Dom wykończony w stanie surowym zamkniętym z elewacją
Media: woda, prąd - na działce, Kanalizacja- szambo ekologiczne, gaz-brak
Cena stan surowy z elewacją: 599 000 zł
Zadzwoń i umów się na oglądanie.
- bezpłatna opieka doświadczonego doradcy finansowego, ofertę wybieramy z 26 banków
- 10 % rabatu na cały asortyment w Leroy Merlin, Castorama dla każdego klienta
Paweł Krok
tel. 881 583 344
Licencjonowane Biuro Nieruchomości
Rzeszów, ul. Dąbrowskiego 67
tel. 17 710 50 01
e-mail: pawel@super-nieruchomosci.com
www.super-nieruchomosci.com




